Multilocale in vendita

Campagnola Emilia, Via Alcide De Gasperi
€ 105.000
6 locali 6 locali
270 Mq 270 Mq
1 bagno 1 bagno

Multilocale in vendita

Campagnola Emilia, Via Alcide De Gasperi

Descrizione annuncio

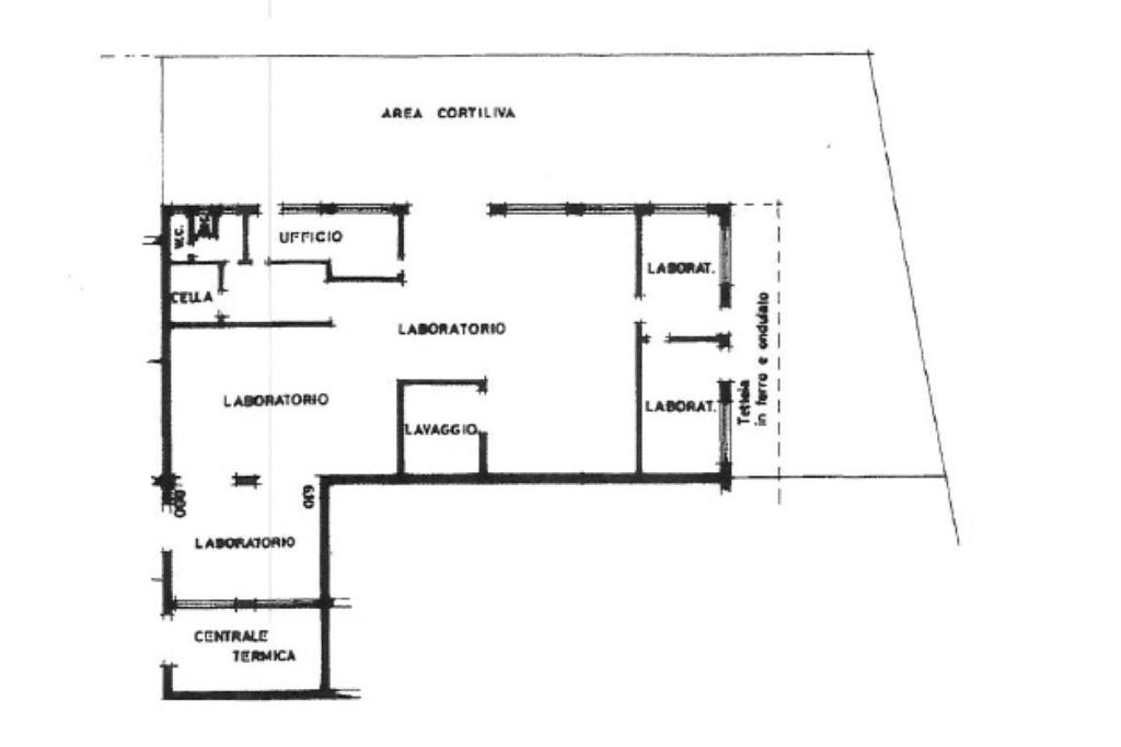
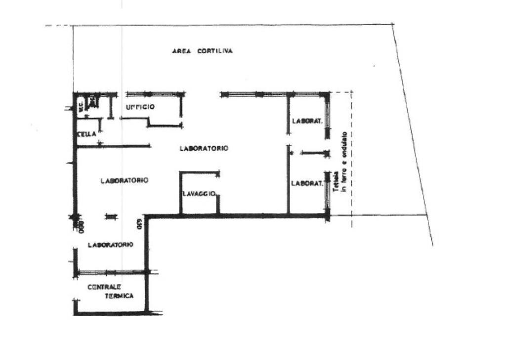
CAMPAGNOLA EMILIA - Proponiamo capannone commerciale di 270 mq, ideale per attività produttive, artigianali o di stoccaggio.

L'immobile è già suddiviso in ambienti, perfetti per gestire differenti aree operative o per suddividere produzione e magazzino.

All’interno è presente anche un ufficio riservato, completo di bagno di servizio, ideale come zona amministrativa o accoglienza clienti.

La soluzione presenta un'ampia area esterna con accesso comodo per mezzi di carico/scarico.

Posizione tranquilla ma strategica, perfetta per chi cerca una soluzione operativa, immediatamente utilizzabile e con ottima accessibilità.

> Per maggiori informazioni contatta il referente dell'immobile Filippo Lancellotti 335 8410088 o chiama in agenzia

Rimani collegato con noi sui nostri canali social:

Facebook Gruppo Tecnocasa Rio Saliceto

Instagram @tecnocasa_riosaliceto

°°°

Presso le nostre sedi è possibile usufruire di servizi quali:

- VALUTAZIONE GRATUITA DEL TUO IMMOBILE

- ASSISTENZA CONTINUA NELLE FASI DELLA COMPRAVENDITA FINO AL ROGITO

- CONSULENZA GRATUITA DEL CREDITO KIRON PER MUTUI PRIMA/SECONDA CASA E RISTRUTTURAZIONE;

- SURROGA MUTUO;

- STIPULA E REGISTRAZIONE CONTRATTI DI LOCAZIONE;

- CESSIONI DEL QUINTO DELLO STIPENDIO O PENSIONE PER OTTENERE LIQUIDITA' IMMEDIATA;

- POLIZZE ASSICURATIVE A TUTELA DELLA FAMIGLIA, RAMO DANNI E VITA;

- ARE ATTESTATI DI REGOLARITÀ EDILIZIA;

- APE ATTESTATI PRESTAZIONE ENERGETICA.

Mostra tutto

Nelle vicinanze

Trasporto pubblico Trasporto pubblico
Stazione di Novellara
Stazione di Novellara
2,6 Km
Novellara
Novellara
2,7 Km
Ricariche auto elettriche Ricariche auto elettriche
Novellara Viale dello Sport | EnelX
1,7 Km
Municipio di Novellara EnelX
1,9 Km
Stazione di Novellara | EnelX
2,6 Km
Farmacia Farmacia
Farmacia Nuova
2,2 Km
Farmacia
2,6 Km
Supermercati Supermercati
Conad
2,3 Km
Ristoranti Ristoranti
Don Divino Ristorante Pizzeria
1,6 Km
La Conchiglia Ristorante Pizzeria
1,9 Km
Ristoranti
2,2 Km
Trattoria Cognento
2,2 Km
Kamiyama
2,3 Km
Mostra tutto

Caratteristiche

Rif.:
61141960
Piano:
Terra
Arredamento:
Assente
Condizionamento:
Assente
Ascensore:
No
Riscaldamento:
Assente
Mostra tutto
Prezzo Prezzo
€ 105.000
Rata mutuo Rata mutuo
€ 498 / mese
Spese annue Spese annue
€ 0
Proponi il tuo prezzoProponi il tuo prezzo

Classe Energetica

Questo immobile è esente da classe energetica
Anno di costruzione:
1972
Riscaldamento:
Assente

Ti interessa visionare l'immobile?

Fissa un appuntamento  Fissa un appuntamento

Richiedi informazioni

Clicca su Leggi per aprire l'informativa
* Questi campi sono obbligatori

Calcola il tuo mutuo

Semplice e senza impegno
Anticipo

( % )
Mutuo

( % )

pochi semplici passi

inserisci i tuoi dati
Questionario completato
Grazie per aver richiesto un appuntamento senza impegno con un nostro Consulente del Credito e Assicurativo.

Hai inserito correttamente tutti i dati necessari e a breve riceverai una e-mail con un link da convalidare per inviare i tuoi dati.
Affiliato
Immobiliare Emilia Srl
P.zza Carducci, 28 42010 Rio Saliceto (RE)

Il nostro staff


  • Filippo Lancellotti
    Affiliato

  • Luca Belvedere
    Responsabile

  • Chiara Zanzanelli
    Coordinatrice
P.zza Carducci, 28 42010 Rio Saliceto (RE)
Zona: Rio Saliceto-Fabbrico-Campagnola Emilia-Rolo
Mostra su mappa
Orari: lunedì-venerdì 09:00-13:00/15:30-19:30;sabato 09:00-13:00 pomeriggio su appuntamento.
Affiliato
Immobiliare Emilia Srl
P.zza Carducci, 28 42010 Rio Saliceto (RE)

2026 Tecnocasa Franchising S.p.A. - P. IVA 08365160152 - Via Monte Bianco 60/A 20089 Rozzano (MI). Ogni agenzia ha un proprio titolare ed è autonoma. Privacy policy | Policy utilizzo | Cookie policy